Product category
产品类别
拦渣捞渣
XWN型内进式旋转滤网
WJG型网板格栅除污机
ZG型内进式栅筒除污机
SG型钢丝绳牵引式格栅除污机
YZG型移动抓斗式格栅
XQ型循环式齿耙清污机
FHG型反捞式格栅除污机
FS型系列粉碎性格栅
LXG型螺旋式格栅除污机
PLS/PLW型平板格栅格网
SGY移动式格栅除污机 水流控制
SBZ型速闭闸门
FZ/YZ型铸铁镶铜闸门、滑阀
Z型钢制闸门
GBZ型钢坝闸门
M型铸铁防潮门
TY型系列调节堰门
Q系列启闭机
QFBM型气动翻板阀
YXLZ型液动限流闸门
BS型滗水器 输送压榨
LS、LY型螺旋输送机、压榨机
DS型带式输送机 污泥脱水
ZNDY/DNDY型污泥浓缩脱水机
DL系列叠螺式污泥脱水机
WD型污泥斗 砂水分离
XLC型旋流沉砂器
SF/LCF型螺旋式砂水分离机
LCS型链条除砂机
HXS型桥式吸收机 污水提升泵站
混合反应
GJH型管道混合器
HJ型系列混合搅拌机
FJ型反应搅拌机 溶药加药
JY型加药装置
GTF型一体化溶解加药装置 水体充氧
PMQ型盘式膜片曝气器
GMP型管式曝气器 泥水分离
ZXG.NZS.NZ型中心传动刮泥机、浓缩机
ZBG/NBS/NG型周边传动刮泥机、浓缩机
ZXX型中心传动单(多)管式吸泥机
ZBX型周边传动吸泥机
HJG型桁车式吸泥机
HJX型桁车式吸泥机
GMG型高密度沉淀池刮泥机
非金属链条刮泥机
DGG型单轨式刮泥机 油水分离
JYG型集油管
LBG、GSG型链条、钢绳牵引式刮油刮泥机
GYZ型刮油刮渣机
CQF型高效浅层气浮装置
SQF.PQF型竖流、平流式气浮装置
SD型刮沫机 深度处理
LBLC型滤布滤池过滤机
GWL型钢制无阀过滤器
GHL/GQL型核桃壳、纤维球过滤器 技术工艺包
磁凝混处理技术工艺包
通沟污泥处理系统工艺包
反硝化深床滤池系统工艺包
服务热线:
16505140001通沟污泥处理系统工艺包
网站当前位置:首页>>产品展示>>技术工艺包>>通沟污泥处理系统工艺包- 通沟污泥处理系统工艺包
- 所属分类:通沟污泥处理系统工艺包 点击次数:26 发布日期:2022-05-07
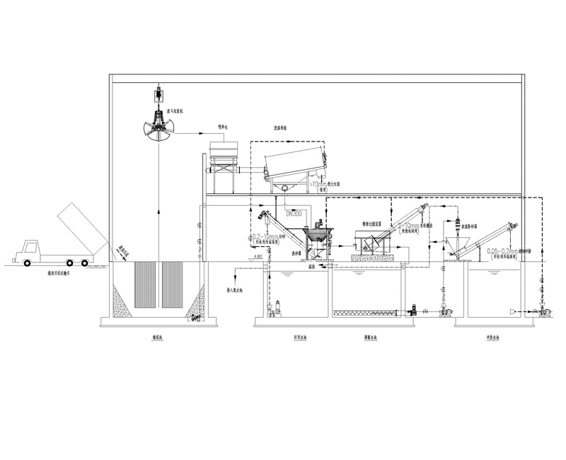
通沟污泥处理系统工艺包应用场合
通沟污泥是指在排水管道养护过程中疏通清捞出来的沉积物,特性比较复杂,是生活垃圾、砂石、渣土、有机污泥和污水的混合物。城市管网中通沟污泥必须及时清理,否则会导致管道排水不畅、污水冒溢,管道内的淤泥会随雨水进入受纳水体造成污染,危害很大。
当前对通沟污泥处理做法是采取清淘后,在附近绿地内晾晒,再直接送入垃圾填埋场填埋。这种处理方式不但影响管网周边绿地的环境,同时由于沟泥成分复杂,含水率变化大,垃圾填埋场逐步拒绝接收此部分污泥的直接进入。随着城市管网的不断建设,通沟污泥日产量将大大增多,处置矛盾进一步加剧,寻找沟泥处置措施迫在眉睫。
本公司研发的通沟污泥系统设备,就是针对上述问题提出的解决方案,主要包括污泥入料系统、大粒径处理系统、中粒径筛分系统、精密过滤系统、泥砂清洗分离系统等,
技术特点
通沟污泥处理系统设备可实现对污泥中砂粒分级、污泥脱水、资源化利用、污水排放处置等综合工艺处置,实现通沟污泥的环保处理及资源化利用。
(1)设备运行可靠,使用寿命长, 整体投资费用低
(2)装置部件及驱动部件数量少,处理功能丰富,实现无害化和资源化
(3)粗中细砂料的分离效果好,污泥体积减量化显著
(4)实现通沟污泥中水的循环使用,减少运行成本
(5)设备保养工作少,电耗水耗低,操作费用省
(6)可根据处理量定制,小规模处理量可做成集装箱式一体化设备。
